1EE701 | Live Smart

Panama City

Team Updates

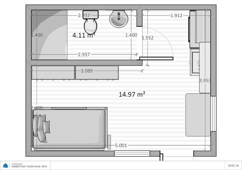
This is our 20 square meter model
This is our 20 square meter model
jmhayotzJuan Miguel Hayot Zapateiro
The idea is to build the houses as a mirror image so that the main water system of the two houses split from the outside. The foundations are built on a concrete post-tensioning process and the walls are built on cellular concrete to make the four houses can stand climatic-related extreme events at low cost.
The idea is to build the houses as a mirror image so that the main water system of the two houses split from the outside. The foundations are built on a concrete post-tensioning process and the walls are built on cellular concrete to make the four houses can stand climatic-related extreme events at low cost.
jmhayotzJuan Miguel Hayot Zapateiro
We're looking on making space saving furniture to put another bed underneath the two others and to make smart furniture to put a dinning table and other drawers on a single piece of furniture
We're looking on making space saving furniture to put another bed underneath the two others and to make smart furniture to put a dinning table and other drawers on a single piece of furniture
jmhayotzJuan Miguel Hayot Zapateiro
Team Stream Item
jmhayotzJuan Miguel Hayot Zapateiro
Our design is a 20 square meter house, in which the rooms are arranged to save space and maintaining the most basic needs of a person.
Our design is a 20 square meter house, in which the rooms are arranged to save space and maintaining the most basic needs of a person.
jmhayotzJuan Miguel Hayot Zapateiro

Resources:

Post-tensioned concrete: Post-tensioned concrete or post-concrete is applied to concrete which, after pouring and setting, is subjected to compression forces by means of active reinforcements (steel cables). Unlike prestressed concrete, in which the reinforcement is tensioned before concreting, in the post-tensioning the reinforcement is tightened once the concrete has acquired its characteristic strength.

jmhayotzJuan Miguel Hayot Zapateiro

Resources:

Cellular Cement: Cellular concrete is a special type of lightweight building material that is produced in the form of blocks or panels used for the construction of residential or commercial buildings.

It is a mixture that consists of pulverized siliceous material (sand, slag or fly ash), cement and / or lime, water and air-entraining additive such as, for example, aluminum powder. This, by reacting chemically with the alkaline water, produces hydrogen and expands the mortar as macropores of diameter between 0.5 and 1.5 mm are formed. Subsequently the material is cured with steam under pressure (autoclave) for a period of 6 to 12 hours, using a temperature of 190 ° C and a pressure of 1.2 MPa. This forms a hardened mortar matrix consisting essentially of hydrated calcium silicates.

jmhayotzJuan Miguel Hayot Zapateiro

Objectives of the project:

A. Build the resilience of the poor and those in vulnerable situations and reduce their exposure and vulnerability to climate-related extreme events and other economic, social and environmental shocks and disasters.

B. Make the design of a house that suits for the basic needs of an individual, saving as much space as possible to reduce the cost.

C. Use materials such as cellular concrete for the construction of houses that are heat resistant.

D. Resocialize or reintegrate individuals living in extreme poverty and give them the possibility of having a better quality of life.

E. Provide a space for social work for the integral training of professionals in various work areas such as Engineering, Sociology, Psychology and others.

F. Improve the economy of the country by reducing the burden these individuals represent for the state.

G. Increase social security by reducing the number of people living on the streets.

H. Applying space saving concepts adapting furniture to the design of the house.

jmhayotzJuan Miguel Hayot Zapateiro

Introduction

According to ECLAC (Economic Commission for Latin America and the Caribbean), indigence or extreme poverty is understood as the situation where resources are not available to meet at least basic food needs. People living in households whose incomes are not enough to purchase a basic food basket are considered as extremely poor, regardless of whether they work or not. At the same time, total poverty is understood as the situation where incomes are lower than the value of a basic basket of goods and services, both food and non-food.

The socioeconomic circumstances of people in extreme poverty are often caused by conditions beyond their control, especially in underdeveloped countries. Other times, they are caused by bad habits that destroy almost the entire rational capacity of a person and in these cases the possibilities of rehabilitating these people becomes a complex task. Because of this, a project of action is needed to try to make this people productive for society again and, primarily, having sufficient opportunities to improve its quality of life.

The project that will be presented below is directed mainly to the Governments of the countries with the highest extreme poverty indexes and focuses its strengths to revive the dreams of these people by the means of self-motivation and personal improvement through the construction of a housing made of Cellular Concrete blocks (mixture of concrete with a foam), designed in such a way that in the least amount of space meets the basic needs of a person. This project brings forward the idea to use human resources from universities to be the mean by which students perform social work hours and thus reduce the cost that would have to hire dedicated personnel in areas of construction, psychology and social work.

jmhayotzJuan Miguel Hayot Zapateiro
NASA Logo

SpaceApps is a NASA incubator innovation program.